Page 14 - DORUK GRUB KATALOG
P. 14

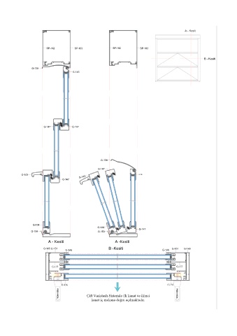
A - Kesiti




                        SP-102        SP-103              SP-102       SP-103

                                                                                                        B - Kesiti

                 G-138
                                      G-146















                       G-147         G-147









                                                    G-138

                                                  G-147
            G-143                                                      G-146
                                         G-143
                                G-147












                 G-134
                                                  G-134
                                                                       G-147
                 G-150                            G-150
                         A - Kesiti                        A -Kesiti
                       G-145 G-151                      B -Kesiti                      G-151  G-145
                                  G-146                                            G-146



                           G-137                                                          G-137




                                G-136                                                G-136

                                             Çift Vasistaslı Sistemde ilk kanat ve ikinci  PUSH KOL
                                               kanat iç mekana doğru açılmaktadır.
                              PUSH KOL
   9   10   11   12   13   14   15   16   17   18   19